Gå til: Plantegning | Fasade | Kontakt
811 – GARASJE
STOR, KLASSISK DOBBELGARASJE
Garasje 811 er en svært innholdsrik garasje med et stort garasjerom hvor du har plass til to personbiler, i tillegg til et garasjeloft med tilgang fra utsiden av bygget.
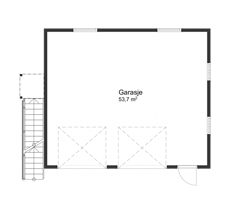
Garasjerommet er på nesten 54m2 og lar deg parkere to privatbiler, samt oppbevare familiens sykler, sportsutstyr og annet som du ønsker å lagre i garasjen. En utvendig trapp fører deg opp til garasjeloftet, et romslig loft som gjerne kan benyttes som stue, hobbyrom eller til oppbevaring og lager.
Bygget har en klassisk og fin fasade, som vil stå godt til boligen din. Vinduer på alle byggets vegger slipper inn mye lys, og en dør plassert på vestveggen lar deg gå inn og ut av garasjen uten å måtte lukke opp garasjeportene.
TEKNISK DATA
PLANTEGNINGER
ØNSKER DU MER INFORMASJON?
FYLL UT SKJEMAET, SÅ KONTAKTER VI DEG FOR EN HYGGELIG BOLIGPRAT
ARKITEKT
ALT KAN TILPASSES FOR Å IMØTEKOMME DERES ØNSKER OG BEHOV
Fordelene med å bygge et helt nytt hus, er at du kan få det akkurat slik som du vil. Trolig finner du en husmodell i vår katalog som kan passe, men kanskje ønsker du å tilpasse boligen etter egne ønsker og behov.
Vi vil gjøre vårt ytterste for at du skal bi fornøyd, og hjelper deg hele veien fra idé til ferdig bolig. Vi har fagkunnskap og gir gode råd for at du skal få bygget en bolig som passer deg helt perfekt.







