Gå til: Plantegninger | Fasade | Kontaktskjema
230 – KVALSVIK
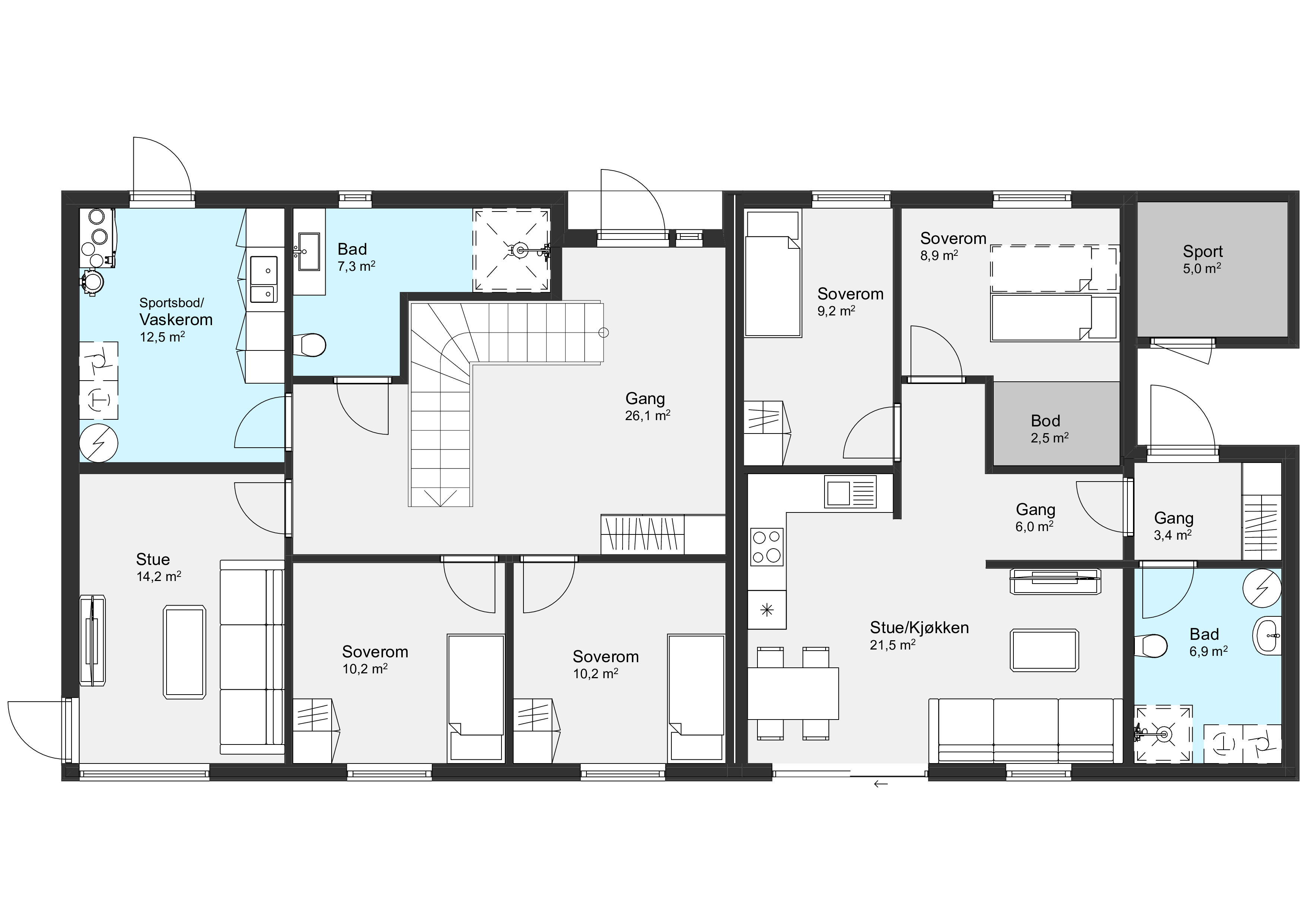
MODERNE BOLIG MED UTLEIE
Kvalsvik er en stor og moderne bolig med rene linjer, store vindusflater og flere stuer og uteplasser.
Hoveddelen har et stort og lyst oppholdsrom på over 80 m², med flere soner for både samvær og ro. Hovedsoverommet byr på egen walk-in garderobe i egen avdeling. Med smarte løsninger og mye plass er Kvalsvik et hjem som vokser med dine behov!
Den fullverdige utleiedelen har egen inngang, to soverom, bad og åpen stue/kjøkken. Perfekt som ekstra inntekt, eller som en del av hovedboligen om behovene endrer seg.
Kvalsvik gir deg både muligheter og trygghet – et hus for i dag, og for fremtiden.
TEKNISK DATA
Energim. utleiedel: Gul – A
ØNSKER DU MER INFORMASJON?
FYLL UT SKJEMAET, SÅ KONTAKTER VI DEG FOR EN HYGGELIG BOLIGPRAT
ARKITEKT
ALT KAN TILPASSES FOR Å IMØTEKOMME DERES ØNSKER OG BEHOV
Fordelene med å bygge et helt nytt hus, er at du kan få det akkurat slik som du vil. Trolig finner du en husmodell i vår katalog som kan passe, men kanskje ønsker du å tilpasse boligen etter egne ønsker og behov.
Vi vil gjøre vårt ytterste for at du skal bi fornøyd, og hjelper deg hele veien fra idé til ferdig bolig. Vi har fagkunnskap og gir gode råd for at du skal få bygget en bolig som passer deg helt perfekt.







